6月15、16日下午,城鄉規劃三年級專業課程設計評圖活動在西城校區大活201、203教室順利舉辦。國家住宅與居住環境工程技術研究中心總規劃師何建清教授、北京市城市規劃設計研究院主任工程師王崇烈、中國建築設計院有限公司規劃中心總規劃師盛況、營家教育CEO王微、白紙坊街道辦事處菜園街社區副主任韓玥、職員劉夢瑤,國際青少年未來之城設計競賽組委會主管王霄鸝以及城鄉規劃係任課老師和13級城鄉規劃專業全體學生50餘人參加評圖活動,城鄉規劃係劉劍鋒副教授主持本次活動。


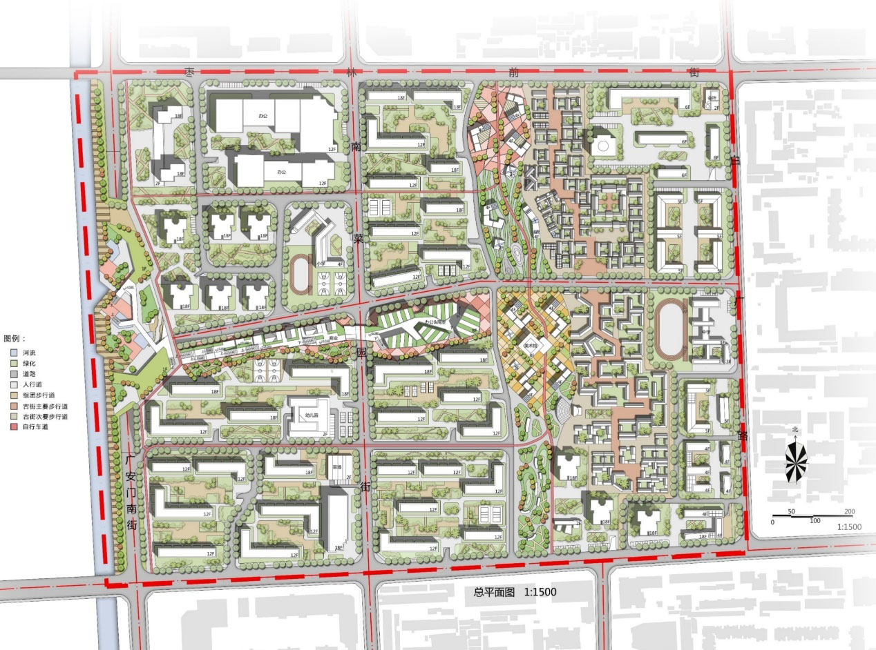
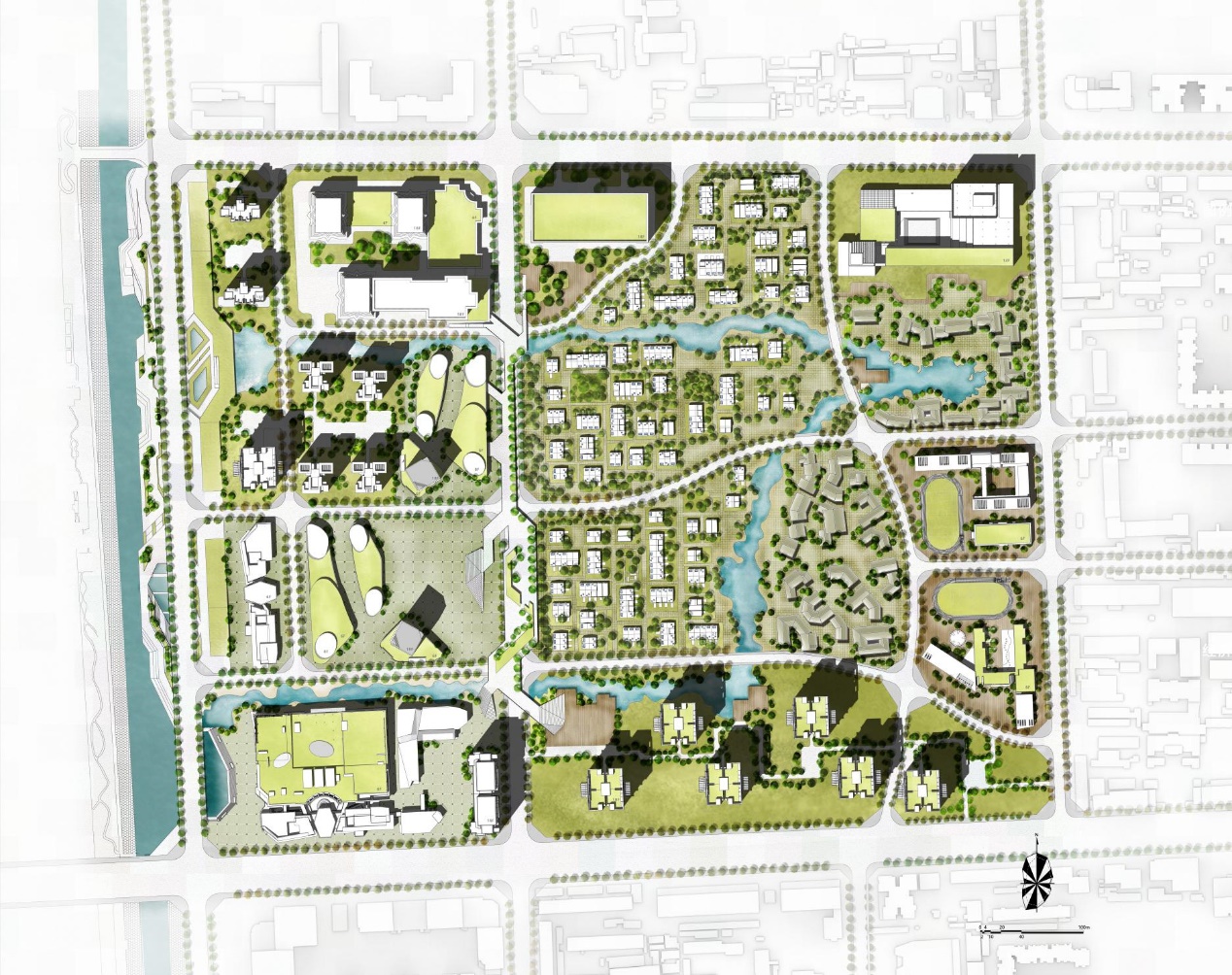
本次課程設計題目分別為“展覽路街區城市設計更新規劃設計”和“白紙坊街區城市更新規劃設計”,規劃設計範圍約50公頃,擬進行整體更新改造。主要動因和目的是充分利用和發揮街區及周邊大學、設計院、部委、科技、會展、公園、交通樞紐、曆史文化遺產、公園等設施的作用,創造新的空間和功能,提升街區的特色和活力,改善居住、工作、遊憩環境,改善交通和景觀風貌。該設計以4人為一組進行分組設計,設計時間為16周,最終書麵成果包括A1圖紙和A3文本兩種形式,並要求製作ppt彙報。

評圖方式是先由每組成員做30分鍾的設計介紹,然後評圖老師和嘉賓逐一講評。全部小組講評結束後,評圖老師和嘉賓提交打分結果。其中講評要點主要包括思想層麵的綜合分析能力、物質層麵的空間設計能力以及文本層麵的規範性、邏輯性、美觀性的把握能力三個部分。

評圖過程中,參評嘉賓們還為同學們講解了如何正確的進行解題、運用怎樣的思維、方法進行設計等等一係列問題。在評圖結束後,許多同學仍然不願離去,與嘉賓和老師們進行更深入的探討。

此次評圖活動,不僅讓同學們體驗到了專業的評圖方式,也促進了同學們與行業內的專家們的交流,相信每一位同學會更加堅定自己未來的設計之路。
附各組的設計總平麵圖和和鳥瞰圖如下:





















